|
テナントビル
[価格]
38,500万円
|
||||
|---|---|---|---|---|
| 物 件 名 | 年間収入 利回り |
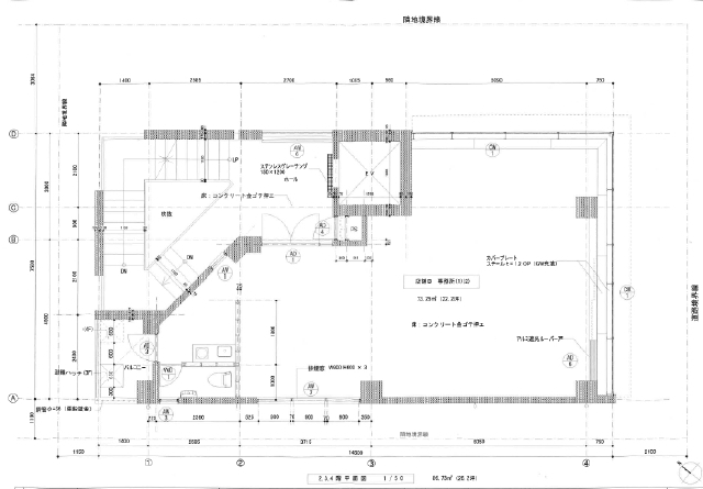
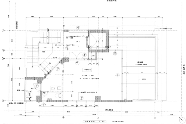
構 造 | 土地面積 建物面積 |
築年月 引渡時期 |
| アーバンプラネットビル | 1,712.4万円 4.44% |
鉄筋コンクリート造 | 207.04m² 365.41m² |
2005/10 相談 |

| 物件番号 | 4844 | ||
|---|---|---|---|
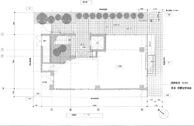
| 交 通 | 最寄施設 古島駅 徒歩約7分・銘苅小学校前バス停 徒歩3分 171m | ||
| 総戸数 | - | 階/階建 | 地上5階建 |
| 年間収入 | 1,712.4万円 | 利回り | 4.44% |
| 建ぺい率 | 60% | 容積率 | 200% |
| 地 目 | 宅地 | 用途地域 | 第二種住居地域 |
| 取引態様 | 一般媒介 | 都市計画 | 市街化区域 |
| 土地権利 | 所有権 | 諸費用 | |
| 現 況 | 賃貸中 | 接 道 | 南東 |
| 特 色 | 【全フロア賃貸中】県道251号線沿いで新都心エリアにほど近く近隣商業施設多数!古島駅まで徒歩約7分のアクセス良好な立地のテナントビルです★オーナーチェンジ、公営水道、公共下水、モノレール駅近く■近隣(約50m)で駐車場賃貸中(16台)※駐車場契約引継ぎ相談必須 月額:95,000円 | ||
| 取引条件有効期限 | 2026年01月30日 | ||